{"pageID":null}
This Property Is Not Available
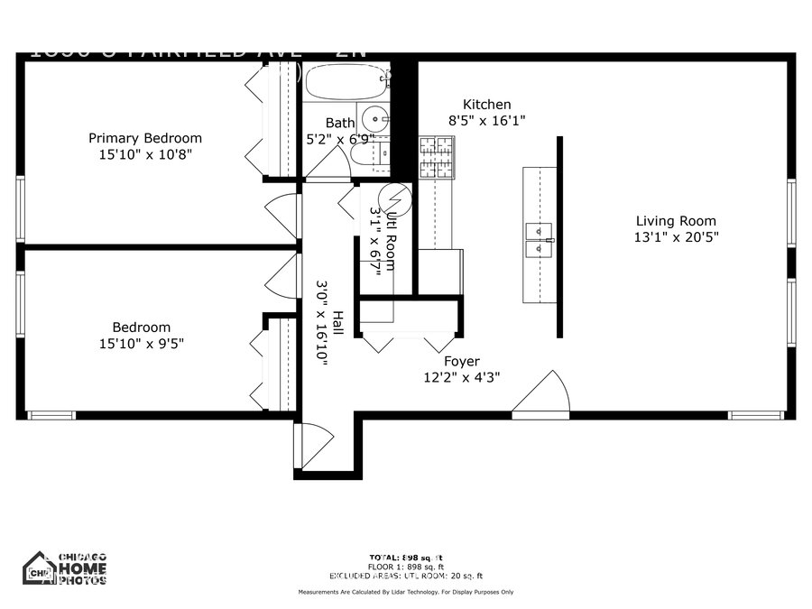
1850 S Fairfield Ave
Chicago, IL 60608
Full Gallery
Property Details
$1,490
Per Month
2
Beds
1.0
Baths
900
sqft
•
This Property Is Not Available
Building Type:
Apartment
Pets:
Yes
Pet Type:
Dogs, Cats
1850 S Fairfield Ave
---- SCHEDULE A SHOWING ONLINE AT: http://showmojo.com/lt/d1750b408f ----
*** Beware of Scams, app fee paid on Findigs portal only, any request to pay through other methods is a scam ***
Experience modern living in this spacious, updated 2-bed/1-bath apartment in southeast Douglas Park. Near Mount Sinai and Saint Anthony Hospitals, and just a 1/4-mile walk to the CTA Pink Line (California), this location offers excellent access to transportation and neighborhood amenities. Enjoy nearby restaurants, grocery stores, and other businesses. The unit features a living room wall AC unit, on-site coin laundry, and rear off-street parking (minimal fee)
IMPORTANT INFORMATION BEFORE APPLYING
Application Fee: $65.00 Non-refundable fee per adult
Base Criteria: No evictions, Monthly household: Gross income 3x the rent amount, No utility or financial accounts in collections, Minimum credit score of 525 or higher
Security Deposit: Equal to 1.5x month's rent or a minimal monthly fee via a security deposit waiver program (details provided for approved applicants)
Pets: Cats/Dogs - limit 2 total - ($25 screening fee; Monthly pet fee determined after screening)
DETAILS
Lease: 12 months
Date Available: Immediately
Unit Type: 2 bed/ 1 bath
Floor Level: 3rd floor
Flooring: Hardwood flooring throughout
Appliances incl: Refrigerator, stove/oven, microwave
Heating: Forced air heating
Cooling: 1 Wall AC unit
Tenant Paid Utilities: Electricity, Gas, Heating & Shared Water, Trash
Administrative move-in fee: $100
Risk Mitigation Fee: Non-refundable fee based on credit score
Laundry: Coin-operated laundry
Parking: $50/mo for rear exterior parking space
Rent included: Pest control, lawn care, snow removal
Approved applicant will be auto-enrolled in our Resident Benefits Package for $35.95/mo
*** Beware of Scams, app fee paid on Findigs portal only, any request to pay through other methods is a scam ***
Experience modern living in this spacious, updated 2-bed/1-bath apartment in southeast Douglas Park. Near Mount Sinai and Saint Anthony Hospitals, and just a 1/4-mile walk to the CTA Pink Line (California), this location offers excellent access to transportation and neighborhood amenities. Enjoy nearby restaurants, grocery stores, and other businesses. The unit features a living room wall AC unit, on-site coin laundry, and rear off-street parking (minimal fee)
IMPORTANT INFORMATION BEFORE APPLYING
Application Fee: $65.00 Non-refundable fee per adult
Base Criteria: No evictions, Monthly household: Gross income 3x the rent amount, No utility or financial accounts in collections, Minimum credit score of 525 or higher
Security Deposit: Equal to 1.5x month's rent or a minimal monthly fee via a security deposit waiver program (details provided for approved applicants)
Pets: Cats/Dogs - limit 2 total - ($25 screening fee; Monthly pet fee determined after screening)
DETAILS
Lease: 12 months
Date Available: Immediately
Unit Type: 2 bed/ 1 bath
Floor Level: 3rd floor
Flooring: Hardwood flooring throughout
Appliances incl: Refrigerator, stove/oven, microwave
Heating: Forced air heating
Cooling: 1 Wall AC unit
Tenant Paid Utilities: Electricity, Gas, Heating & Shared Water, Trash
Administrative move-in fee: $100
Risk Mitigation Fee: Non-refundable fee based on credit score
Laundry: Coin-operated laundry
Parking: $50/mo for rear exterior parking space
Rent included: Pest control, lawn care, snow removal
Approved applicant will be auto-enrolled in our Resident Benefits Package for $35.95/mo
Features and Amenities
- Hardwood floors
- Refrigerator
- Microwave
- Air conditioning
- Dogs ok
- Cats ok
- Stove/oven
